

Bir veya birden fazla kullanıcı için farklı su kaynağı kombinasyonları.
Yüksekliğe, boyutlara ve üst plakaların sayısına göre:
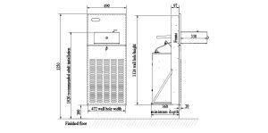
A: Yetişkin:
Yükseklik: 1020mm; Boyutlar: 140mm (Yüksek) x 320(Geniş) x 330(Derin)
B: Devre dışı
Yükseklik: 686mm (ADA); Boyutlar: 140mm (Yüksek) x 320(Geniş) x 457(Derin)
C: Çocuk:
Yükseklik: 610mm (ADA); Boyutlar: 140mm (Yüksek) x 320(Geniş) x 330(Derin)
(Diğer yükseklikleri bağlamak için A: Yetişkin seçeneği her zaman gereklidir).
LV: Cam dolgulu ve ek basma düğmeli üst plaka.
PV: Bardak tutucu ve bardak atma paslanmaz çelik aksesuarı.
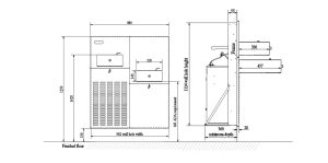
| SOĞUTMA GÜCÜ (W) | 600 |
| GÜÇ TÜKETİMİ (W) | 230 |
| VOLTAGE 230V 50Hz SINGLE-PHASE (A) | 1,1 |
| SOĞUTMA KAPASİTESİ (l/h) | 50 |
| SU ÇIKIŞ HIZI (l/h) | 60 |
| SU DEPOSU KAPASİTESİ (l) | 4.5 |
| SU ÇIKIŞ SICAKLIĞI (ºC) (Regulated by thermostat) | 4 – 11 |
| ECOLOGICAL REFRIGERATE GAS (CFC – free) | R290 |
| AĞIRLIK (kg) MODEL EF-8TAB | 59 |
