Eller Serbest Sebiller

Sadece pedala basarak veya sensörün önünde durarak su jetinden içmek veya şişeleri doldurmak için. Eller serbest modeller – güvenli ve hijyenik bir çözüm.
  • Sağlam ve dayanıklı bir çeşme gerektiren her türlü durum için idealdir.
  • Büyük, sağlam paslanmaz çelik pedalla veya daha fazla rahatlık için uzaktan sensör kontrolüyle otomatik olarak etkinleştirilen modeller.
  • İç şasi dahil olmak üzere tamamen paslanmaz çelikten yapılmıştır.
  • Daha büyük boyutlara sahip, yüksek stabilite ve dayanıklılık sağlayan içme çeşmeleri
  • Anti-vandalizm kalkanlı özel bir kabuk sayesinde su jeti için artırılmış hijyenik koruma LV modeli, pedal kullanarak küçük şişeleri veya bardakları doldurmak için tasarlanmıştır.
  • Su jeti yüksekliği, yüksek hassasiyetli membran valf kullanılarak kolayca ayarlanabilir.
  • Daha iyi su kalitesi için bir arıtma filtresinin takılması tavsiye edilir.
 
Modeller

M-6ALVPE (Seri 6)
Pedal (PE) ile çalışan soğuk su bardağı doldurucusu.
Küçük şişeleri veya bardakları doldurmak için.

M-6APE (Seri 6)
Pedal (PE) ile çalıştırılan soğuk su jeti.

M-6AOP (Seri 6)
Yakınlık detektörü (OP) ile çalışan soğuk su jeti.
Gıda endüstrisi için idealdir.

M-2APE (Soğutmasız)
Pedal (PE) ile çalıştırılan oda sıcaklığında su jeti.

M-6APEMV (Seri 6)
Pedal ile çalıştırılan soğuk su jeti (PE).
Engelli Aksesuarı (MV): Yakınlık sensörü.

M-8APE (Seri 8)
Soğuk su için pedalla (PE) çalıştırılan kuğu boynu.
Şişeleri veya sürahileri doldurmak için.

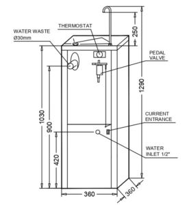
Teknik Detaylar
 Series 6Series 8
SOĞUTMA GÜCÜ (W)400600
GÜÇ TÜKETİMİ (W)200230
VOLTAGE 230 V 50 Hz single-phase (A) 0.91.1
SOĞUTMA KAPASİTESİ (l/h)3550
SU ÇIKIŞ HIZI (l/h)60360
SU DEPOSU KAPASİTESİ (l) (Optional: stainless steel direct chill)4,57,5
SU ÇIKIŞ SICAKLIĞI (ºC) (Regulated by thermostat)4 – 114 – 11
SOĞUTUCU GAZ (CFC – Free)R290R290
AĞIRLIK (kg) / M-6APEMV26 / 4031
Çizimler

Ürünler

Yeni Sebiller

Şişe Su Soğutucuları

İçme Sebilleri

Kullanım Noktası Soğutucular

Gömme Sebiller

Tezgah Altı Su Soğtucuları

Aksesuar ve Filtreler